025

Neubau Primarschulhaus Bazenheid

Kirchberg SG

2017-2020

Projektwettbewerb selektiv
1. Rang
Ausgeführt

Bauherrschaft

Gemeinde Kirchberg

Landschaftsarchitektur

atelier tp

Bauingenieur

Ingenieurbüro A. Keller AG

Baumanagement

Caretta Weidmann AG

HLKS

Calorex AG

Elektroplanung

IBG Engineering AG

Bauphysik

PIRMIN JUNG Schweiz AG

Fotografie

Roman Keller

Holzbauingenieur

PIRMIN JUNG Schweiz AG

Zwei höchst nachhaltige Holzbauten gliedern die Schulanlage und den Aussenraum neu und entflechten Kindergarten- und Primarschulnutzung.

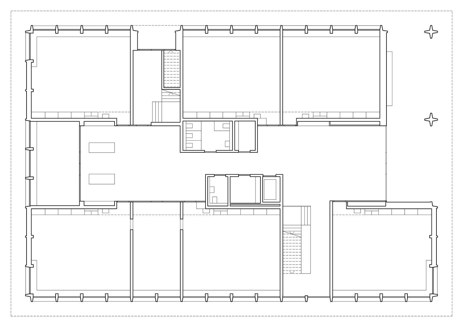
Städtebau und Freiraum

Die zwei Neubauten werden – der topographischen und städtebaulichen Logik folgend – auf der untersten der drei Ebenen der Schulanlage platziert. Während das neue Primarschulhaus den westseitigen Abschluss der Anlage bildet schiebt sich der Kindergartenneubau zwischen bestehendes Schulhaus und Kindergarten und gliedert und verdichtet den Aussenraum im nordöstlichen Bereich des Perimeters. Durch die gewählte Setzung werden die Nutzungen „Kindergarten“ und „Primarschule“ sowie deren Erschliessungswege voneinander entflechtet. Es entstehen klar definierte Nutzungseinheiten. Sämtliche Pausenplätze und Spielflächen befinden sich auf der strassenabgewandten Seite und haben einen direkten Zugang zur freien mittleren Ebene mit der Spielwiese und dem arealquerenden Gemeindeweg.

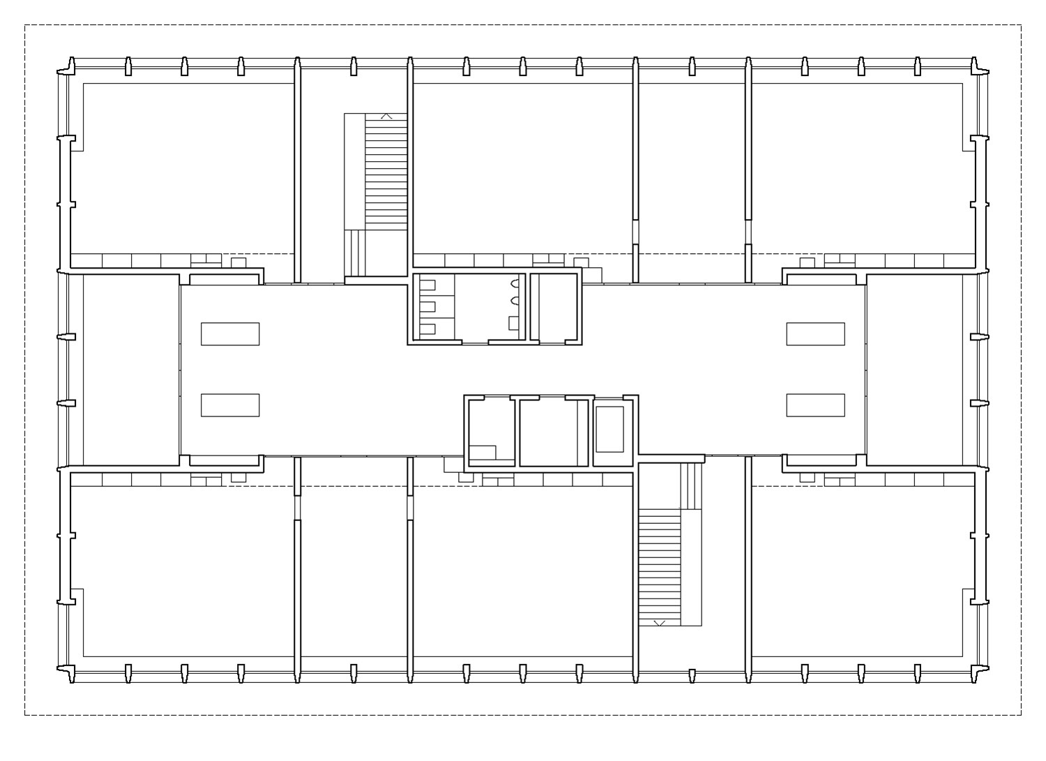
Primarschule

Der Grundriss der Primarschule lässt viele verschiedene Unterrichtsformen zu und bietet eine grosse Flexibilität. Neben dem klassischen Frontalunterricht kann auch klassenübergreifend oder in offenen Lernlandschaften unterrichtet werden. Die grosse Mittelzone lässt sich flexibel für grosse Gruppenarbeiten oder gemeinsames Lernen nutzen. Dank den nichttragenden Innenwänden können jederzeit Anpassungen an der Grundrissstruktur vorgenommen werden, so dass auf zukünftige Lehranforderungen flexibel reagiert werden kann. Die Struktur der Primarschule ist somit äusserst nachhaltig und langlebig. Die Haptik der natürlichen Oberflächen und die sichtbare Holzkonstruktion regen zur Erforschung an.

Konstruktion

Schulhaus und Kindergarten werden als Holzbau mit aussteifenden Kernen in Massivbauweise erstellt. Anhand weniger und sehr einfacher Details, die auf einem klaren Raster aufbauen, entstehen innovative Neubauten, welche höchste Ansprüche betreffend Wirtschaftlichkeit, Nachhaltigkeit, Ökologie, Komfort und Flexibilität erfüllen.