096

Schulhaus „Dorf“ Suhr

Suhr AG

2025

selektiver Projektwettbewerb
2. Rang
Wettbewerb

Bauherrschaft

Gemeinde Suhr

Landschaftsarchitektur

Appert Zwahlen Partner AG

Zusammenarbeit

Renggli AG

Visualisierungen

Studio Maleta

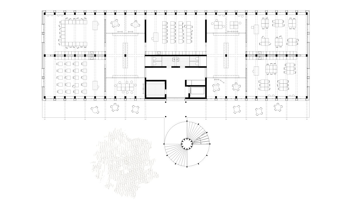
Das Projekt «Baumhaus» ergänzt das Schulareal «Dorf» in Suhr und stärkt den Campuscharakter. Die Gebäudestruktur folgt der Analogie eines Baumes: Ein funktionaler Stamm mit Kindergarten, Musik, Verwaltung und Veranstaltung wird von einer schulischen Krone überlagert. Die Erschliessung erfolgt über eine grosszügige Aussentreppe – als Ort des Ankommens und des Austauschs.

Städtebau und Freiraum

Das Schulareal «Dorf» in Suhr ist ein gewachsener Campus mit Bauten verschiedener Jahrzehnte. Trotz der heterogenen Architektur bleibt das Ensemble als Einheit lesbar. Eine zentrale Ost-West-Achse verbindet und zoniert die Anlage in nördliche und südliche Bereiche.

Der geplante Neubau liegt an der nordwestlichen Ecke des Areals und ergänzt das Ensemble aus Ortsmuseum, Tagesstrukturen und Aula. Die erhöhte Platzsituation zur Tramstrasse wird aufgenommen und neu interpretiert. Die Setzung des Baukörpers folgt der bestehenden Struktur und stärkt die Adressbildung. Eine neue Baumgruppe markiert den Auftakt. Die bestehende Linde bleibt erhalten. Der offen gestaltete Treppenturm vermittelt zwischen den unterschiedlichen Höhenniveaus.

Schulhaus

Das Gebäude folgt der Analogie eines Baumes: Ein funktionaler Stamm mit Kindergarten, Musik, Verwaltung und Veranstaltung sowie eine schulische Krone in den Obergeschossen. Die Nutzungen sind in Halbgeschossen organisiert, intern verbunden und bei Bedarf betrieblich trennbar.

Die Schulräume im 1. und 2. Obergeschoss werden über eine sanft ansteigende Aussentreppe erschlossen – als Ort des Ankommens und Austauschs. Die angrenzende, alte Linde ist dabei das begleitende Motiv.

Musikräume und Kindergarten erhalten separate Zugänge, der Veranstaltungsbereich liegt an zentraler Lage zum Pausenplatz. Die Verwaltung gruppiert sich um eine zentrale Halle im ersten Obergeschoss.

Ausdruck

Der Bezug zum Bestand wie beispielsweise der «Villa Kunterbunt» wird primär über die einfache, längliche Volumetrie unter einem Giebeldach hergestellt. Ähnlich zur Tagesstruktur und auch zum Schulhaus Vinci setzt sich die Fassade primär aus stehenden Proportionen zusammen. Gleichzeitig werden diese vorgefundenen architektonischen Themen nur sanft zitiert und in eine eigenständige, zeitgemässe Sprache überführt. Gerade die Erschliessung und die Balkone werden durch die farbliche Akzentuierung bewusst betont und tragen zu einem identitätsstiftenden Charakter bei.